thank you
Your email has been sent.
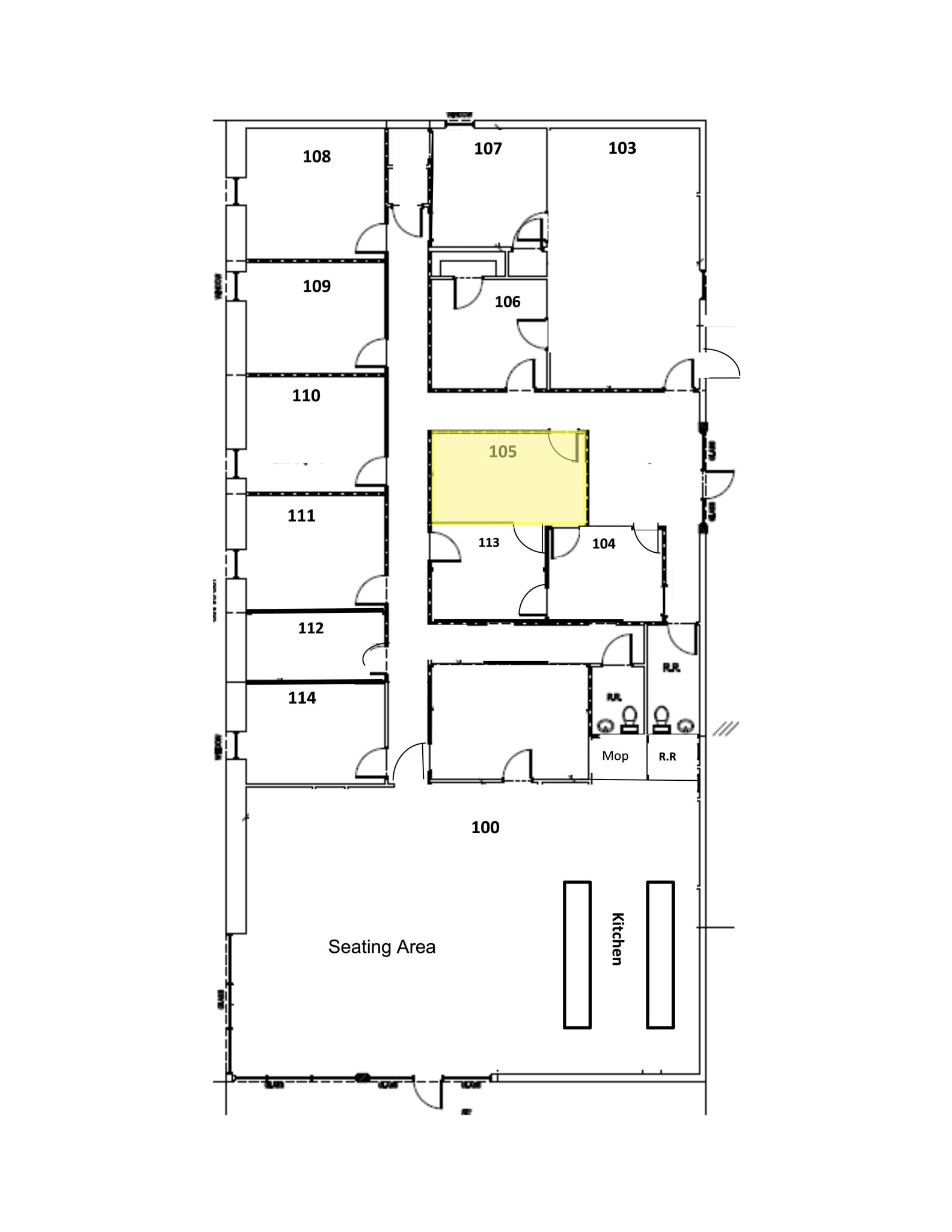
101 S Fannin St 203 SF of Office Space Available in Rockwall, TX 75087



ALL AVAILABLE SPACE(1)
Display Rental Rate as
- SPACE
- SIZE
- TERM
- RENTAL RATE
- SPACE USE
- CONDITION
- AVAILABLE
Interior office suite available near the main entrance and waiting area! This suite is located in a historic building off the Downtown Rockwall Square, just walking distance to other businesses! Ample Parking.
- Rate includes utilities, building services and property expenses
- Central Air Conditioning
- After Hours HVAC Available
- 1 Private Office
- Wi-Fi Connectivity
| Space | Size | Term | Rental Rate | Space Use | Condition | Available |
| 1st Floor, Ste 105 | 203 SF | Negotiable | Upon Request Upon Request Upon Request Upon Request Upon Request Upon Request | Office | - | December 01, 2025 |
1st Floor, Ste 105
| Size |
| 203 SF |
| Term |
| Negotiable |
| Rental Rate |
| Upon Request Upon Request Upon Request Upon Request Upon Request Upon Request |
| Space Use |
| Office |
| Condition |
| - |
| Available |
| December 01, 2025 |
1st Floor, Ste 105
| Size | 203 SF |
| Term | Negotiable |
| Rental Rate | Upon Request |
| Space Use | Office |
| Condition | - |
| Available | December 01, 2025 |
Interior office suite available near the main entrance and waiting area! This suite is located in a historic building off the Downtown Rockwall Square, just walking distance to other businesses! Ample Parking.
- Rate includes utilities, building services and property expenses
- 1 Private Office
- Central Air Conditioning
- Wi-Fi Connectivity
- After Hours HVAC Available
PROPERTY OVERVIEW
Historic office/restaurant building off the Downtown Rockwall Square just walking distance to other restaurants, boutiques, and businesses! A private and public parking lot is located beside the building.
PROPERTY FACTS
SELECT TENANTS
- FLOOR
- TENANT NAME
- INDUSTRY
- 1st
- Lake Ray Hubbard Counseling
- Health Care and Social Assistance
- 1st
- Pier 101
- Public Administration
- 1st
- Rockwall County Fire Marshals
- Public Administration
- 1st
- Sheriffs' Association Of Texas
- Services
Presented by
101 S Fannin St
Hmm, there seems to have been an error sending your message. Please try again.
Thanks! Your message was sent.


